My Search Tools:

$1,250,000 - 24139 Jolly Roger Boulevard, PUNTA GORDA

3
Bedrooms
2
Baths
1,687
SQ. Feet
0.42
Acres

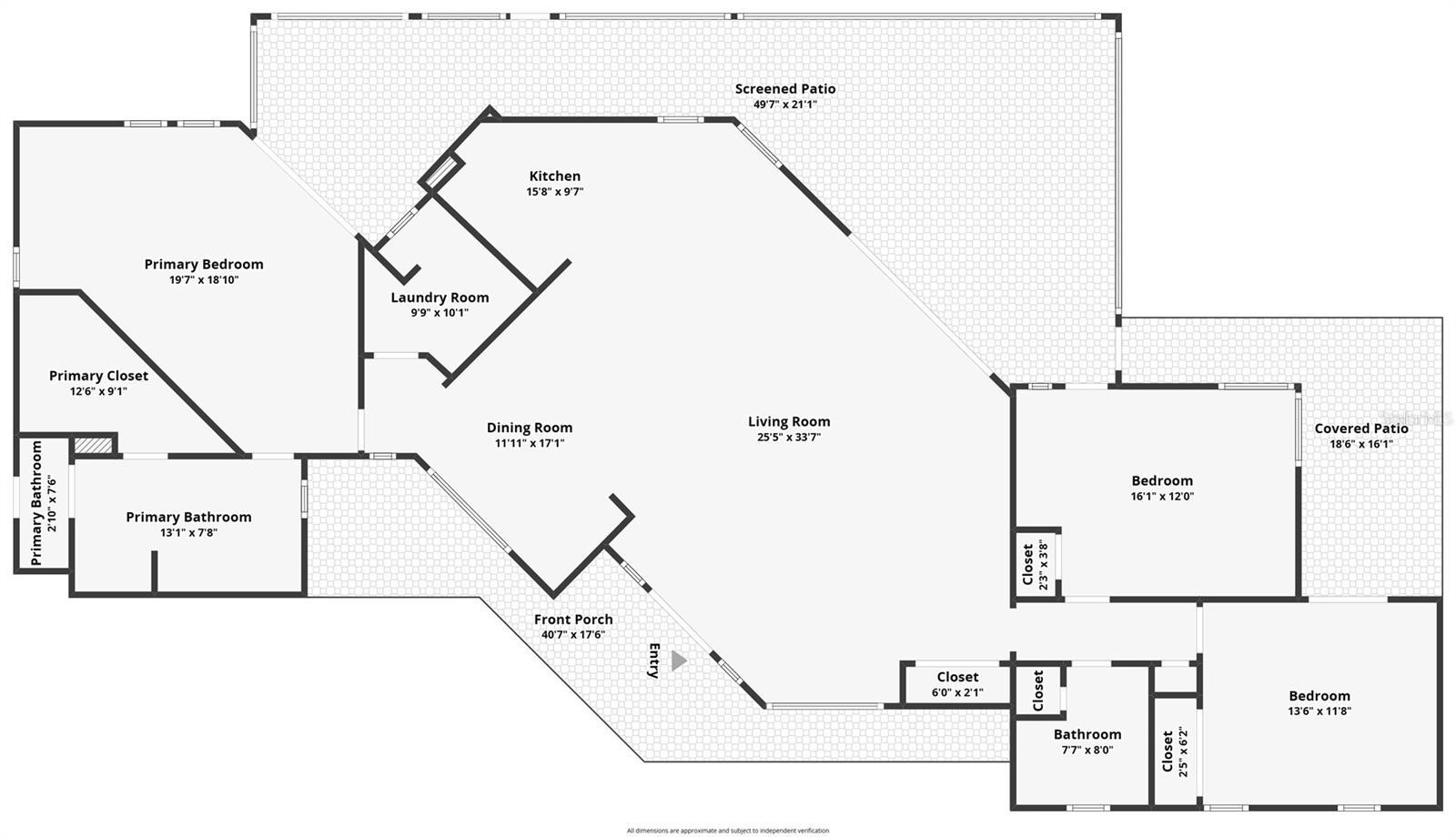
Welcome to your very own piece of Paradise in the highly sought-after Pirate Harbor Community! If you are dreaming of the Ideal Florida Waterfront Lifestyle, 210 ft. of Waterfront with unobstructed view of Charlotte Harbor and all the way thru to Boca Grande Pass and beyond to the Gulf of Mexico, protected by Seawall and Mangroves giving you complete Direct Access to Pristine Charlotte Harbor for World Class Boating and Fishing, plus a short Boat Ride to Boca Grande and the Gulf of Mexico then this Home is your Perfect choice. The Many Features of this Graceful Estate Home includes an Open Floor Plan with High Ceilings and Solid Hardwood Maple Flooring throughout, as you enter through the Double Doors with Etched Glass, you are greeted by the Incredible Waterfront Views, Spacious Great Room, Soaring Ceilings, Semi-Separate Dining Area with one of kind built-in Wet Bar with Wine Cooler, this is a must see! Uniquely Designed and Custom Built Chef’s Kitchen with Gas Gagganeau Cooktop with separate Wok Burner, Built in Double ovens, Beautiful Solid Tiger Maple Wood Cabinets with Artisan Carved Glass Doors, track pendent and task lighting, Expansive Breakfast Bar, Stone Counters, High End Appliances, Sub-zero side-by-side Refrigerator/Freezer, undercounter GE Fridge, Indoor Grill, Miele Dishwasher, and amazing Waterfront Views. The Private Primary En-Suite, with sliding glass door offers access to the Screened Deck, Custom Designed Primary Spa with Freestanding Curved Blue Glass Walk in Shower, Granite Counters and His and Her's Vanities, Walk in Closet, Italina Slate Tile and Custom Lighting. Split Floor Plan with Two Guest Bedrooms and a Guest Bath, all rooms have Water Views, Inside Laundry Room with extra Storage, Exterior tankless propane Water Heater, Whole House water softener system with R/O Drinking water system, Closed cell foam insulation sprayed throughout the attic and underside of the home. South Facing Screened Deck provides Year-around enjoyment and gives way to additional Living Space overlooking the Waterfront plus all the benefits of taking in the Stunning views, taking your eyes towards Boca Grande, experiencing the joy of remarkable Sunsets every evening. On the lower level there is a workshop and/or a Fisherman's room for Gear, a Generator Hookup, plus room to park up to 3-4 Cars and all of your Toys. This Home is situated on 210ft. of Waterfront with Concrete Seawall, Concrete Dock, Wooden Boat Dock with Boat Lift, it’s every boater's dream, and mere minutes separating you from Boca Grande, Cayo Costa, and the interconnected waterways of Charlotte Harbor and the Gulf of Mexico. Here, you can take pleasure in both stunning Sunsets and breathtaking Sunrises, all while indulging in Boating and Fishing opportunities. Your Waterfront Lifestyle Awaits; we invite you for a Private Tour today.

Essential Information

  • MLS® #:
    C7520133
  • Price:
    $1,250,000
  • Bedrooms:
    3
  • Bathrooms:
    2.00
  • Full Baths:
    2
  • Square Footage:
    1,687
  • Acres:
    0.42
  • Year Built:
    1988
  • Type:
    Residential
  • Sub-Type:
    Single Family Residence
  • Style:
    Key West
  • Status:
    Active

Community Information

  • Address:
    24139 Jolly Roger Boulevard
  • Area:
    Punta Gorda
  • Subdivision:
    PIRATE HARBOR
  • City:
    PUNTA GORDA
  • County:
    Charlotte
  • State:
    FL
  • Zip Code:
    33955

Amenities

  • Parking:
    Boat, Covered, Driveway, Golf Cart Parking, Ground Level, Oversized, Basement, Workshop in Garage
  • View:
    Water
  • Is Waterfront:
    Yes
  • Waterfront:
    Bay/Harbor

Interior

  • Interior Features:
    Built-in Features, Ceiling Fans(s), Eat-in Kitchen, High Ceilings, Open Floorplan, Solid Wood Cabinets, Split Bedroom, Stone Counters, Walk-In Closet(s), Wet Bar
  • Appliances:
    Bar Fridge, Built-In Oven, Cooktop, Dishwasher, Dryer, Gas Water Heater, Indoor Grill, Kitchen Reverse Osmosis System, Range, Refrigerator, Tankless Water Heater, Washer, Water Filtration System, Whole House R.O. System, Wine Refrigerator
  • Heating:
    Central, Electric
  • Cooling:
    Central Air
  • # of Stories:
    1

Exterior

  • Exterior Features:
    Hurricane Shutters, Sliding Doors
  • Lot Description:
    Cul-De-Sac, In County, Paved
  • Roof:
    Metal
  • Foundation:
    Stilt/On Piling

School Information

  • Elementary:
    East Elementary
  • Middle:
    Punta Gorda Middle
  • High:
    Charlotte High

Additional Information

  • Days on Market:
    6
  • Zoning:
    RSF3.5

Listing Details

  • Listing Office:
    Re/max Harbor Realty

Listing information courtesy of Re/max Harbor Realty.

All listing information is deemed reliable but not guaranteed and should be independently verified through personal inspection by appropriate professionals. Listings displayed on this website may be subject to prior sale or removal from sale; availability of any listing should always be independently verified.

Listing information is provided for consumer personal, non-commercial use, solely to identify potential properties for potential purchase; all other use is strictly prohibited and may violate relevant federal and state law.

Listing data comes from My Florida Regional MLS.

Listing information last updated on January 21st, 2026 at 12:05pm EST.