My Search Tools:

$745,000 - 1592 Aqui Esta Drive, PUNTA GORDA

3
Bedrooms
2
Baths
2,987
SQ. Feet
0.33
Acres

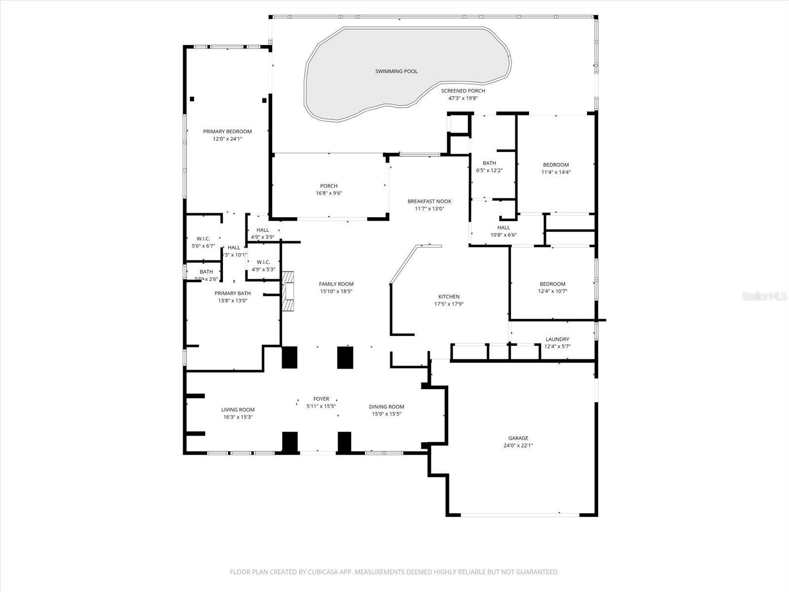
Under contract-accepting backup offers. Discover this stunning former model home, located on an oversized corner waterfront lot in the highly desirable community of Punta Gorda Isles. This exceptional residence was designed with elegance, comfort, and waterfront living in mind — offering direct powerboat access to Charlotte Harbor in under 20 minutes. Step inside and experience the inviting, open layout with bright water views from nearly every room. The formal living and dining rooms feature custom lighted built-in cabinetry, display shelving, and a stylish bar area — ideal for entertaining. A true split floor plan provides privacy, with the expansive master suite tucked away at the rear of the home. The master retreat includes a cozy sitting area overlooking the canal and pool, dual walk-in closets, and a spa-inspired bathroom with dual vanities, a soaking tub, and a spacious shower. This 3-bedroom, 2-bath home showcases exceptional craftsmanship and high-end finishes throughout, including soaring, high-spacious ceilings throughout the home, decorative tray ceilings in every room, crown molding (even in the garage), granite countertops, and premium wood cabinetry, a propane gas fireplace, arched doorways, 8-foot interior doors, and upgraded lighting and ceiling fans. This home is pre-wired for a whole-home network and an entertainment connection center. The gourmet kitchen flows seamlessly to the family room and outdoors, where you’ll find the perfect Florida retreat. Enjoy the heated infinity-edge pool with screened lanai, built-in outdoor grill, stamped concrete decking, and a stamped circular drive. The concrete dock and seawall (maintained by the City of Punta Gorda) make boating simple and worry-free. Additional highlights include a spacious laundry room with a washer/dryer and a built-in ironing board, as well as a pre-washing sink. An oversized garage with fans and can lighting, and an irrigation system. Located just blocks from St. Andrews South Golf Club, this home offers an unmatched lifestyle in Punta Gorda Isles — a deed-restricted waterfront community with 52 miles of saltwater canals leading to Charlotte Harbor and the Gulf of Mexico. Whether you’re seeking a full-time residence, seasonal retreat, or a move-in-ready waterfront home, this property is a rare opportunity to own a showcase home in one of Florida’s most desirable boating communities.

Essential Information

  • MLS® #:
    C7515711
  • Price:
    $745,000
  • Bedrooms:
    3
  • Bathrooms:
    2.00
  • Full Baths:
    2
  • Square Footage:
    2,987
  • Acres:
    0.33
  • Year Built:
    2002
  • Type:
    Residential
  • Sub-Type:
    Single Family Residence
  • Status:
    Pending

Community Information

  • Address:
    1592 Aqui Esta Drive
  • Area:
    Punta Gorda
  • Subdivision:
    PUNTA GORDA ISLES SEC 14
  • City:
    PUNTA GORDA
  • County:
    Charlotte
  • State:
    FL
  • Zip Code:
    33950

Amenities

  • Parking:
    Driveway, Garage Door Opener
  • # of Garages:
    2
  • View:
    Park/Greenbelt, Trees/Woods, Water
  • Has Pool:
    Yes

Interior

  • Interior Features:
    Cathedral Ceiling(s), Ceiling Fans(s), Crown Molding, Eat-in Kitchen, High Ceilings, Kitchen/Family Room Combo, Primary Bedroom Main Floor, Solid Wood Cabinets, Stone Counters, Thermostat, Tray Ceiling(s), Walk-In Closet(s), Window Treatments
  • Appliances:
    Dishwasher, Disposal, Dryer, Electric Water Heater, Exhaust Fan, Microwave, Range, Refrigerator, Washer
  • Heating:
    Electric, Zoned
  • Cooling:
    Central Air, Humidity Control, Attic Fan
  • Fireplace:
    Yes
  • Fireplaces:
    Living Room
  • # of Stories:
    1

Exterior

  • Exterior Features:
    Hurricane Shutters, Lighting, Outdoor Shower, Sliding Doors, Storage
  • Roof:
    Metal
  • Foundation:
    Slab

School Information

  • Elementary:
    Sallie Jones Elementary
  • Middle:
    Punta Gorda Middle
  • High:
    Charlotte High

Additional Information

  • Days on Market:
    139
  • Zoning:
    GS-3.5

Listing Details

  • Listing Office:
    Realty One Group Mvp

Listing information courtesy of Realty One Group Mvp.

All listing information is deemed reliable but not guaranteed and should be independently verified through personal inspection by appropriate professionals. Listings displayed on this website may be subject to prior sale or removal from sale; availability of any listing should always be independently verified.

Listing information is provided for consumer personal, non-commercial use, solely to identify potential properties for potential purchase; all other use is strictly prohibited and may violate relevant federal and state law.

Listing data comes from My Florida Regional MLS.

Listing information last updated on February 21st, 2026 at 6:18pm EST.