My Search Tools:

$735,000 - 8411-8419 Duffie Drive 101, PUNTA GORDA

-
Bedrooms
-
Baths
750
SQ. Feet
5
Acres

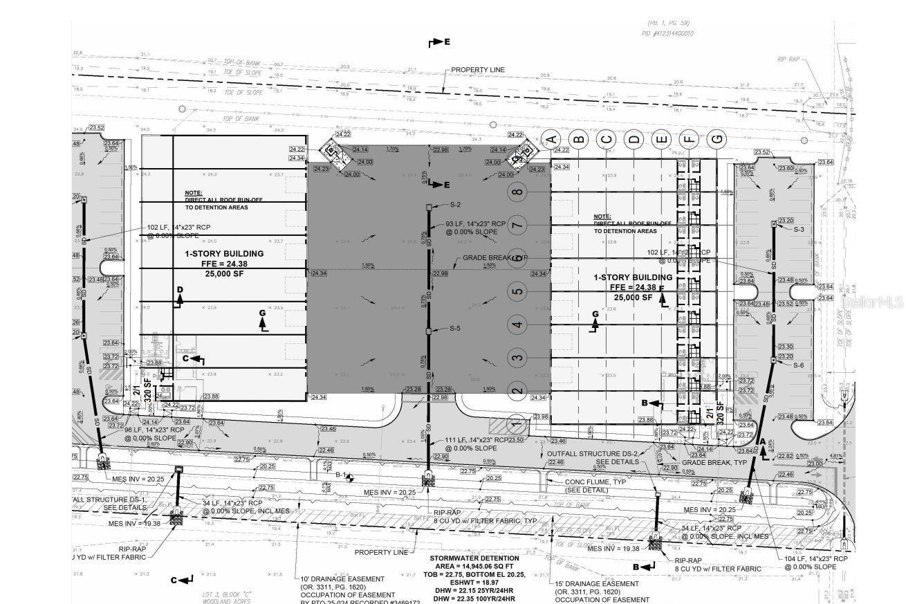
One or more photo(s) has been virtually staged. Pre-Construction. To be built. ECAP Zoned Flex Condos. 16 Units available across two - 25,000 Sq Ft. Buildings. Each unit will be 3,125 Sq Ft. Units may be bought individually or in bulk. Each unit will feature showroom space, 3 individual offices, and 1 ADA compliant bathroom. Warehouse space will include roll up door in rear, and 26+ feet ceiling heights. Property is conveniently located near the Punta Gorda airport 5 minute car drive to I75 Jones Loop Ramp. Enjoy the vibrant community of Punta Gorda featuring fine dinning, shopping & more Estimated completion date for the buildings is Quarter 4 of 2026. Condo Fees are to be determined. For more information call. Information is deemed reliable but is not guaranteed.

Essential Information

  • MLS® #:
    C7512718
  • Price:
    $735,000
  • Bathrooms:
    0.00
  • Square Footage:
    750
  • Acres:
    5.00
  • Year Built:
    2026
  • Type:
    Commercial Sale
  • Sub-Type:
    Industrial
  • Status:
    Active

Community Information

  • Address:
    8411-8419 Duffie Drive 101
  • Area:
    Punta Gorda
  • Subdivision:
    WOODLAND ACRES
  • City:
    PUNTA GORDA
  • County:
    Charlotte
  • State:
    FL
  • Zip Code:
    33982

Amenities

  • Parking:
    Common, Over 30 Spaces

Interior

  • Heating:
    Central
  • Cooling:
    Office Only
  • # of Stories:
    1

Exterior

  • Lot Description:
    Industrial Condo
  • Roof:
    Metal
  • Foundation:
    Slab

Additional Information

  • Days on Market:
    201
  • Zoning:
    ECAP

Listing Details

  • Listing Office:
    Premiere Plus Realty Company

Listing information courtesy of Premiere Plus Realty Company.

All listing information is deemed reliable but not guaranteed and should be independently verified through personal inspection by appropriate professionals. Listings displayed on this website may be subject to prior sale or removal from sale; availability of any listing should always be independently verified.

Listing information is provided for consumer personal, non-commercial use, solely to identify potential properties for potential purchase; all other use is strictly prohibited and may violate relevant federal and state law.

Listing data comes from My Florida Regional MLS.

Listing information last updated on February 22nd, 2026 at 12:33pm EST.