My Search Tools:

$950,000 - 5221 Almar Drive, PUNTA GORDA

3
Bedrooms
3
Baths
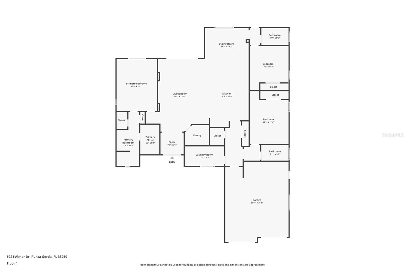
2,233
SQ. Feet
0.22
Acres

Waterfront living meets modern Florida design in this Gulf-access home in Punta Gorda Isles with no bridges and quick access to Charlotte Harbor and the Gulf of Mexico. Built in 2021, this 3-bedroom, 3-bath property features a bright open floor plan, high ceilings, impact-resistant windows and doors, and elegant finishes throughout. The chef-style kitchen opens to the great room with pocketing sliding glass doors that create seamless indoor-outdoor living. Enjoy year-round entertaining on the 57-foot screened lanai with wet bar plumbing, roll-down privacy shades, designer lighting, and wiring for a jacuzzi or outdoor kitchen. The home sits on an 80-foot seawall and includes a 30' x 10' concrete dock, making it ideal for fishing, boating, and sunset cruising. The luxury primary suite offers long water views, a walk-in closet, and double-sink vanity bath. Additional features include energy-efficient construction, tile roof, oversized garage storage, and tropical landscaping. Located PGI, this home offers direct boating access, no HOA fees, and convenient proximity to downtown Punta Gorda, Fishermen’s Village, waterfront parks, and dining. Experience waterfront living with comfort, quality, and style—this is where Florida lifestyle begins.

Essential Information

  • MLS® #:
    C7503223
  • Price:
    $950,000
  • Bedrooms:
    3
  • Bathrooms:
    3.00
  • Full Baths:
    3
  • Square Footage:
    2,233
  • Acres:
    0.22
  • Year Built:
    2021
  • Type:
    Residential
  • Sub-Type:
    Single Family Residence
  • Style:
    Florida
  • Status:
    Active

Community Information

  • Address:
    5221 Almar Drive
  • Area:
    Punta Gorda
  • Subdivision:
    PUNTA GORDA ISLES SEC 14
  • City:
    PUNTA GORDA
  • County:
    Charlotte
  • State:
    FL
  • Zip Code:
    33950

Amenities

  • Parking:
    Circular Driveway, Driveway, Garage Door Opener
  • # of Garages:
    2
  • View:
    Water
  • Is Waterfront:
    Yes
  • Waterfront:
    Canal - Saltwater

Interior

  • Interior Features:
    Ceiling Fans(s), High Ceilings, Open Floorplan, Primary Bedroom Main Floor, Split Bedroom, Stone Counters, Thermostat, Tray Ceiling(s), Walk-In Closet(s), Window Treatments
  • Appliances:
    Bar Fridge, Dishwasher, Disposal, Dryer, Electric Water Heater, Microwave, Range, Refrigerator, Washer
  • Heating:
    Central, Electric
  • Cooling:
    Central Air

Exterior

  • Exterior Features:
    Lighting, Outdoor Kitchen, Private Mailbox, Shade Shutter(s), Sliding Doors, Sprinkler Metered, Storage
  • Lot Description:
    City Limits, Near Golf Course, Near Marina, Street Dead-End, Paved
  • Roof:
    Tile
  • Foundation:
    Slab

School Information

  • Elementary:
    Sallie Jones Elementary
  • Middle:
    Punta Gorda Middle
  • High:
    Charlotte High

Additional Information

  • Days on Market:
    385
  • Zoning:
    GS-3.5

Listing Details

  • Listing Office:
    Coldwell Banker Realty

Listing information courtesy of Coldwell Banker Realty.

All listing information is deemed reliable but not guaranteed and should be independently verified through personal inspection by appropriate professionals. Listings displayed on this website may be subject to prior sale or removal from sale; availability of any listing should always be independently verified.

Listing information is provided for consumer personal, non-commercial use, solely to identify potential properties for potential purchase; all other use is strictly prohibited and may violate relevant federal and state law.

Listing data comes from My Florida Regional MLS.

Listing information last updated on February 3rd, 2026 at 7:04am EST.