My Search Tools:

$1,699,000 - 4119 Royal Palm Drive, BRADENTON

3
Bedrooms
2
Baths
2,397
SQ. Feet
0.21
Acres

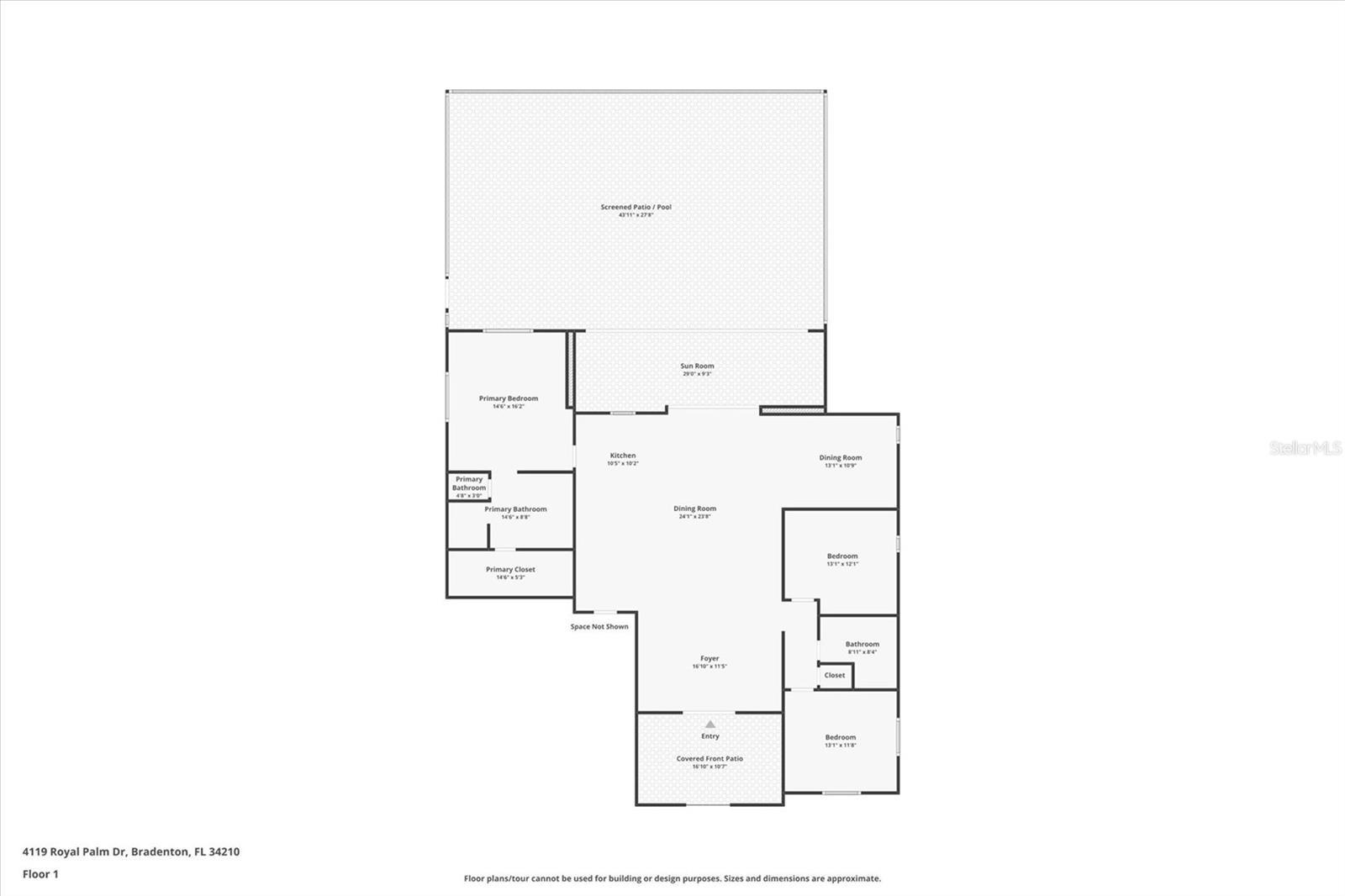
One or more photo(s) has been virtually staged. Welcome to canalfront living at its best! Completely remodeled in 2025, this luxurious waterfront home features an impressive array of upgrades and renovations, all designed for unparalleled luxury living and peace of mind. Nestled in the charming San Remo Shores neighborhood of Bradenton, this lovely community is a quick drive away to the prestigious IMG Academy, the area’s pristine beaches, and a variety of shopping and dining options. Notice the meticulous attention to detail of this open-concept masterpiece and be captivated by its abundant water views. Discover over $200,000 in premium cabinetry, an electric fireplace, wide luxury vinyl plank flooring, and stunning custom lighted tray ceilings that create an inviting ambiance. The kitchen features a natural Quartzite waterfall island with dual-sided cabinetry that perfectly balances beauty and functionality. A complimentary $15,000 appliance allowance is included, allowing the freedom to select the ideal appliances that suit personal taste. Water views await in the primary suite, along with a customized walk-in closet and a spa-like en-suite bath. This luxurious bath features a Bluetooth enabled steam shower with dual rainfall showerheads and a freestanding Whirlpool tub. A new custom eight-person hot tub and beautifully remodeled pool are conveniently surrounded by a custom tile pool deck complete with full-length steps and stylish lighting. The waterfront lifestyle continues with a renovated dock boasting durable TREX decking, ideal for launching a boat or enjoying mesmerizing sunsets on the water. Additional highlights include the security of a new roof, a reworked electrical system – complete with a panel box that includes 200-amp service and a generator disconnect, new hurricane windows and doors for enhanced safety, updated plumbing and waterline, a new lanai with a covered area, a charming Florida room, and an epoxy-finished garage floor with a new door. Embrace the lifestyle of comfort and luxury in this exquisite canal-front home. Schedule a showing today and discover all that this exceptional property has to offer.

Essential Information

  • MLS® #:
    A4679131
  • Price:
    $1,699,000
  • Bedrooms:
    3
  • Bathrooms:
    2.00
  • Full Baths:
    2
  • Square Footage:
    2,397
  • Acres:
    0.21
  • Year Built:
    1971
  • Type:
    Residential
  • Sub-Type:
    Single Family Residence
  • Style:
    Florida
  • Status:
    Active

Community Information

  • Address:
    4119 Royal Palm Drive
  • Area:
    Bradenton
  • Subdivision:
    SAN REMO SHORES
  • City:
    BRADENTON
  • County:
    Manatee
  • State:
    FL
  • Zip Code:
    34210

Amenities

  • Parking:
    Driveway, Garage Door Opener, Ground Level
  • # of Garages:
    2
  • Is Waterfront:
    Yes
  • Waterfront:
    Canal - Saltwater
  • Has Pool:
    Yes

Interior

  • Interior Features:
    Ceiling Fans(s), Dry Bar, Eat-in Kitchen, Kitchen/Family Room Combo, Living Room/Dining Room Combo, Open Floorplan, Primary Bedroom Main Floor, Solid Surface Counters, Solid Wood Cabinets, Stone Counters, Thermostat, Tray Ceiling(s), Walk-In Closet(s)
  • Appliances:
    Disposal
  • Heating:
    Central, Electric
  • Cooling:
    Central Air
  • Fireplace:
    Yes
  • Fireplaces:
    Electric, Living Room
  • # of Stories:
    1

Exterior

  • Exterior Features:
    Lighting, Private Yard, Rain Gutters, Sliding Doors, Sprinkler Metered
  • Lot Description:
    Flood Insurance Required, FloodZone, Landscaped, Street Dead-End
  • Roof:
    Shingle
  • Foundation:
    Slab

School Information

  • Elementary:
    Sea Breeze Elementary
  • Middle:
    W.D. Sugg Middle
  • High:
    Bayshore High

Additional Information

  • Days on Market:
    41
  • Zoning:
    RSF4.5/C

Listing Details

  • Listing Office:
    The Agency Sarasota

Listing information courtesy of The Agency Sarasota.

All listing information is deemed reliable but not guaranteed and should be independently verified through personal inspection by appropriate professionals. Listings displayed on this website may be subject to prior sale or removal from sale; availability of any listing should always be independently verified.

Listing information is provided for consumer personal, non-commercial use, solely to identify potential properties for potential purchase; all other use is strictly prohibited and may violate relevant federal and state law.

Listing data comes from My Florida Regional MLS.

Listing information last updated on March 3rd, 2026 at 3:33pm EST.