My Search Tools:

$829,000 - 380 Pinellas Bayway S B, TIERRA VERDE

3
Bedrooms
2
Baths
1,662
SQ. Feet
1980
Year Built

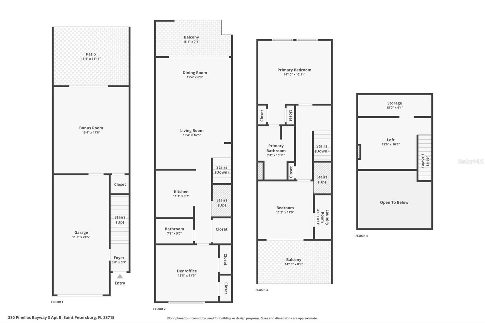
Under contract-accepting backup offers. Welcome to the island life you’ve been dreaming about. Perfectly set along Tierra Verde’s most coveted waterway, the Grand Canal, this 3-bedroom, 2-bathroom waterfront townhome with an attached garage delivers the ultimate coastal lifestyle. A true boater’s paradise, your deeded boat slip sits just steps from your door, making spontaneous day and sunset cruises part of everyday life. From the moment you walk in, the water steals the show. Sparkling intracoastal views welcome you inside and flow throughout the home, creating a seamless connection to life on the Grand Canal. The chef’s kitchen blends beauty and function with granite countertops, tile backsplash, stainless steel appliances, soft-close cabinetry, and a pantry, all overlooking the water so you can watch boats glide by while preparing meals. The open living and dining area is made for coastal living, capturing glowing sunsets and opening through triple sliders to a spacious covered balcony. This balcony also features a spiral staircase leading down to the ground-floor patio, creating an effortless indoor-outdoor flow for entertaining, grilling, or simply enjoying the island life. The primary suite feels like a private retreat with sweeping grand canal views, soaring cathedral ceilings, and a spa-inspired bath featuring dual sinks, dual closets, and a walk-in shower with multiple body sprayers. The second bedroom sits on the main living level and feels light and welcoming, positioned close to the kitchen and living space with a full bath just around the corner, perfect for guests or flexible use. The third bedroom opens to its own private balcony, where mornings begin with sunrises and coffee and evenings wind down with cocktails and coastal breezes. As an added bonus on the upper level, there is a loft which provides flexible space ideal for a home office, creative studio, or additional guest sleeping area. On the lower level, a versatile bonus room offers the ideal space for entertaining, island-themed gatherings, movie nights, or hosting guests. The sliders open to a spacious tiled patio where grilling, relaxing, and watching the dolphins & manatee play become part of everyday Island life. From here, you have easy access to the open water, making every day feel like a vacation, with calm no-wake waterways of the Grand Canal leading you out to the Gulf in just minutes. Enjoy morning fishing trips, afternoon cruises, or relaxing sunset cruises, all starting right from your backyard. The big-ticket upgrades are already done. The roof is just three years old. A brand new seawall was completed in 2024, along with new power and water stanchions at the dock. Pilings have been re-wrapped, and the piers are scheduled to be resurfaced this summer. Enjoy deep, protected water with quick access to the Gulf of Mexico, and the rare convenience of seeing your boat from your home. This dog-friendly community offers a private waterfront pool and an unbeatable location. Mornings begin with bike rides to Fort De Soto and miles of shoreline to explore, afternoons drift by on calm waters and sandy beaches, and by evening, downtown St Petersburg is just 15 minutes away for waterfront dining, vibrant arts, Broadway shows at the Straz Center, and an energized coastal nightlife. This is saltwater living at its best, effortless, scenic, and ready to enjoy. Schedule a showing today!

Essential Information

  • MLS® #:
    A4678012
  • Price:
    $829,000
  • Bedrooms:
    3
  • Bathrooms:
    2.00
  • Full Baths:
    2
  • Square Footage:
    1,662
  • Acres:
    0.00
  • Year Built:
    1980
  • Type:
    Residential
  • Sub-Type:
    Townhouse
  • Status:
    Pending

Community Information

  • Address:
    380 Pinellas Bayway S B
  • Area:
    St Pete/Tierra Verde
  • Subdivision:
    PINE KEY LODGE
  • City:
    TIERRA VERDE
  • County:
    Pinellas
  • State:
    FL
  • Zip Code:
    33715

Amenities

  • # of Garages:
    1
  • View:
    Pool, Water

Interior

  • Interior Features:
    Cathedral Ceiling(s), Ceiling Fans(s), Living Room/Dining Room Combo, Open Floorplan, Split Bedroom, Stone Counters, Walk-In Closet(s)
  • Appliances:
    Dishwasher, Disposal, Dryer, Electric Water Heater, Microwave, Range, Refrigerator, Washer
  • Heating:
    Central, Electric
  • Cooling:
    Central Air

Exterior

  • Exterior Features:
    Balcony, Hurricane Shutters, Private Entrance
  • Roof:
    Shingle
  • Foundation:
    Slab

Additional Information

  • Days on Market:
    28

Listing Details

  • Listing Office:
    Fine Properties

Listing information courtesy of Fine Properties.

All listing information is deemed reliable but not guaranteed and should be independently verified through personal inspection by appropriate professionals. Listings displayed on this website may be subject to prior sale or removal from sale; availability of any listing should always be independently verified.

Listing information is provided for consumer personal, non-commercial use, solely to identify potential properties for potential purchase; all other use is strictly prohibited and may violate relevant federal and state law.

Listing data comes from My Florida Regional MLS.

Listing information last updated on February 12th, 2026 at 4:03am EST.