My Search Tools:

$3,900,000 - 213 North 18th Street W, BRADENTON

4
Bedrooms
5
Baths
4,252
SQ. Feet
0.5
Acres

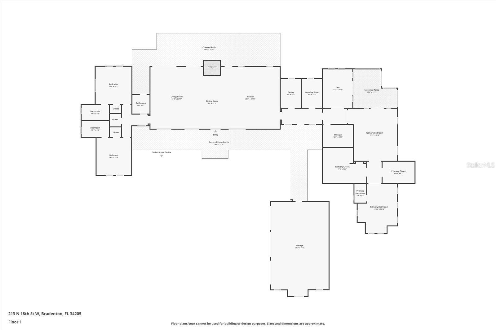
Manatee River Waterfront SHOWSTOPPER! Located in the heart of Downtown Bradenton, this custom-built coastal estate was completed in 2017 by renowned local builder Stephen Carlsen and offers breathtaking panoramic water views along 150 feet of pristine waterfront on an expansive 21,750 sq. ft. double lot. Positioned 8ft. in elevation the property did not flood or take on water during Hurricane Helene in 2024 and includes an assumable flood insurance policy of only $1,394 annually. This 4-bedroom, 4.5-bath coastal masterpiece provides 4,252 sq. ft. of air-conditioned living space and 7,153 sq. ft. total, thoughtfully designed with a timeless Key West–inspired aesthetic. A bonus “Casita” guest house with its own private entrance includes a bedroom, bathroom, and walk-in closet, offering a luxurious and private retreat ideal for guests or extended stays. The home showcases volume ceilings, extensive custom trim detailing, and wide-plank engineered hardwood flooring throughout. Expansive covered patios and porches create an effortless indoor-outdoor living experience while embracing tranquil waterfront views. The home is constructed of concrete block and topped with a striking 5V Galvalume metal roof, blending durability with architectural character. Throughout the residence, Italian Calacatta Gold marble countertops elevate the kitchen and all bathrooms. The chef’s kitchen is outfitted with premium Sub-Zero refrigeration and a full Wolf appliance suite, including one electric oven, two gas ovens, and an integrated warming drawer, making it ideal for entertaining and everyday living. A Generac natural-gas whole-house generator, energy-efficient tankless water heaters, and dual-zone air conditioning in the main residence ensure comfort and peace of mind, while separate mini-split systems independently serve the air-conditioned three-car garage and guest house. Additional highlights include Marvin Modern hurricane-impact casement windows and doors throughout, all featuring retractable screens, along with motorized retractable screens on the rear porches to seamlessly blend indoor and outdoor living. A private, secured front gate with coded entry enhances privacy, while a comprehensive monitored security system includes cameras and sensors on doors and windows. The home is also equipped with a whole-house water softening system and a private freshwater irrigation well to maintain lush tropical landscaping. For boating enthusiasts, the property features an impressive 180-foot private dock complete with a 12,500-pound boat lift and a dedicated dual jet ski lift, offering immediate access to the Manatee River. This extraordinary waterfront estate presents a rare opportunity to own a meticulously designed residence that combines luxury, security, and resort-style boating amenities in one of downtown Bradenton’s most desirable locations. Whether entertaining guests, embarking on a sunset cruise, or relaxing while soaking in serene water views, this exceptional property delivers the ultimate coastal lifestyle.

Essential Information

  • MLS® #:
    A4677502
  • Price:
    $3,900,000
  • Bedrooms:
    4
  • Bathrooms:
    5.00
  • Full Baths:
    4
  • Half Baths:
    1
  • Square Footage:
    4,252
  • Acres:
    0.50
  • Year Built:
    2017
  • Type:
    Residential
  • Sub-Type:
    Single Family Residence
  • Style:
    Key West
  • Status:
    Active

Community Information

  • Address:
    213 North 18th Street W
  • Area:
    Bradenton
  • Subdivision:
    POINT PLEASANT
  • City:
    BRADENTON
  • County:
    Manatee
  • State:
    FL
  • Zip Code:
    34205

Amenities

  • Parking:
    Electric Vehicle Charging Station(s), Garage Door Opener, Garage Faces Side, Guest, Oversized
  • # of Garages:
    3
  • View:
    Water
  • Is Waterfront:
    Yes
  • Waterfront:
    Bay/Harbor, Bayou, River Front

Interior

  • Interior Features:
    Built-in Features, Eat-in Kitchen, High Ceilings, Living Room/Dining Room Combo, Primary Bedroom Main Floor, Solid Wood Cabinets, Split Bedroom, Stone Counters, Thermostat, Walk-In Closet(s), Window Treatments
  • Appliances:
    Dishwasher, Disposal, Dryer, Gas Water Heater, Microwave, Range, Refrigerator, Tankless Water Heater, Washer, Water Softener
  • Heating:
    Electric
  • Cooling:
    Central Air
  • Fireplace:
    Yes
  • Fireplaces:
    Family Room, Gas, Outside, Wood Burning
  • # of Stories:
    1

Exterior

  • Exterior Features:
    French Doors, Lighting, Outdoor Grill, Storage
  • Lot Description:
    City Limits, Landscaped, Near Marina, Near Public Transit, Private, Paved
  • Roof:
    Metal
  • Foundation:
    Slab

School Information

  • Elementary:
    Ballard Elementary
  • Middle:
    Martha B. King Middle
  • High:
    Manatee High

Additional Information

  • Days on Market:
    25
  • Zoning:
    R3B

Listing Details

  • Listing Office:
    Sato Real Estate Inc.

Listing information courtesy of Sato Real Estate Inc..

All listing information is deemed reliable but not guaranteed and should be independently verified through personal inspection by appropriate professionals. Listings displayed on this website may be subject to prior sale or removal from sale; availability of any listing should always be independently verified.

Listing information is provided for consumer personal, non-commercial use, solely to identify potential properties for potential purchase; all other use is strictly prohibited and may violate relevant federal and state law.

Listing data comes from My Florida Regional MLS.

Listing information last updated on February 13th, 2026 at 2:18pm EST.