My Search Tools:

$1,750,000 - 519 South Drive, ANNA MARIA

3
Bedrooms
2
Baths
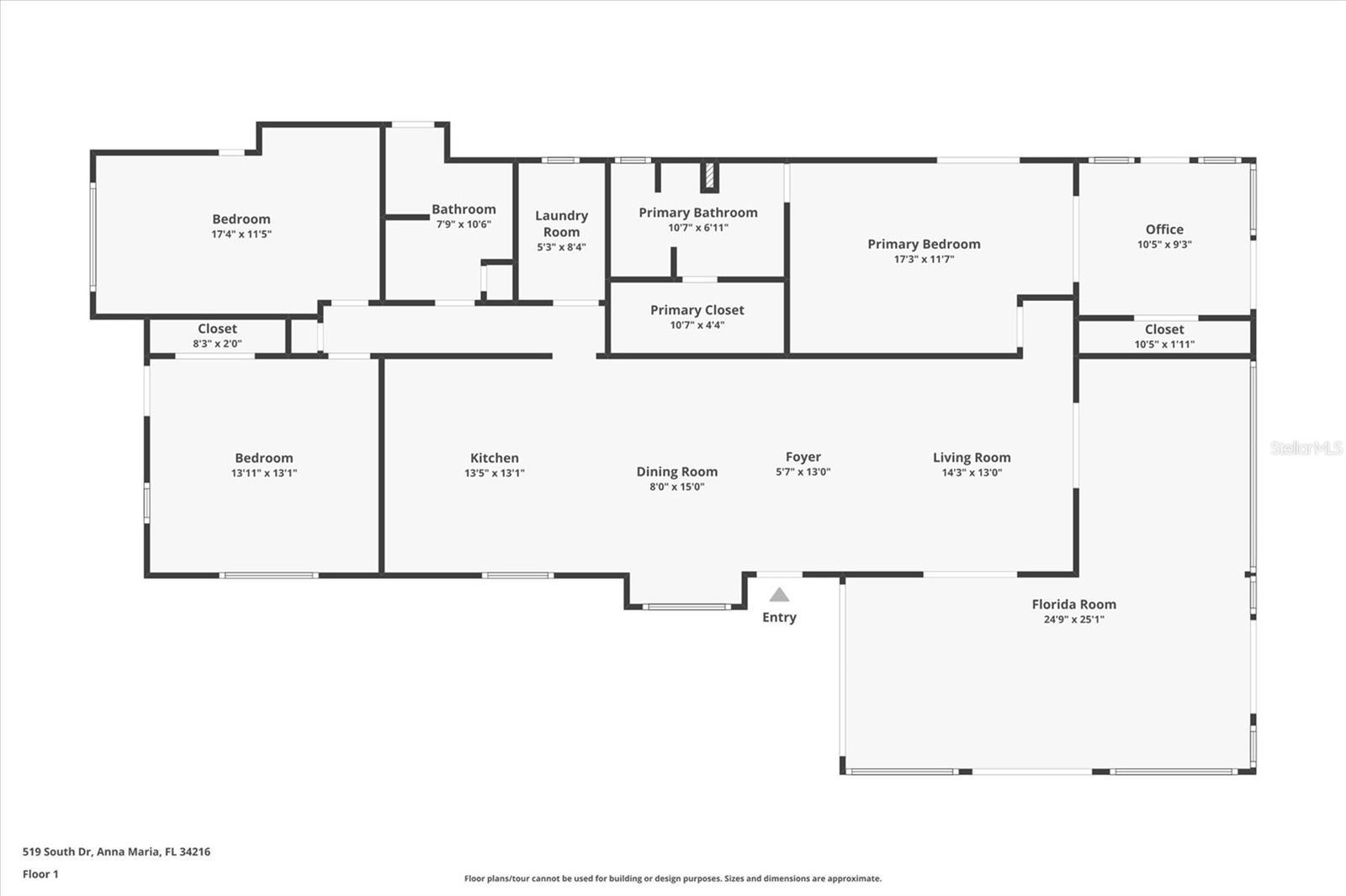
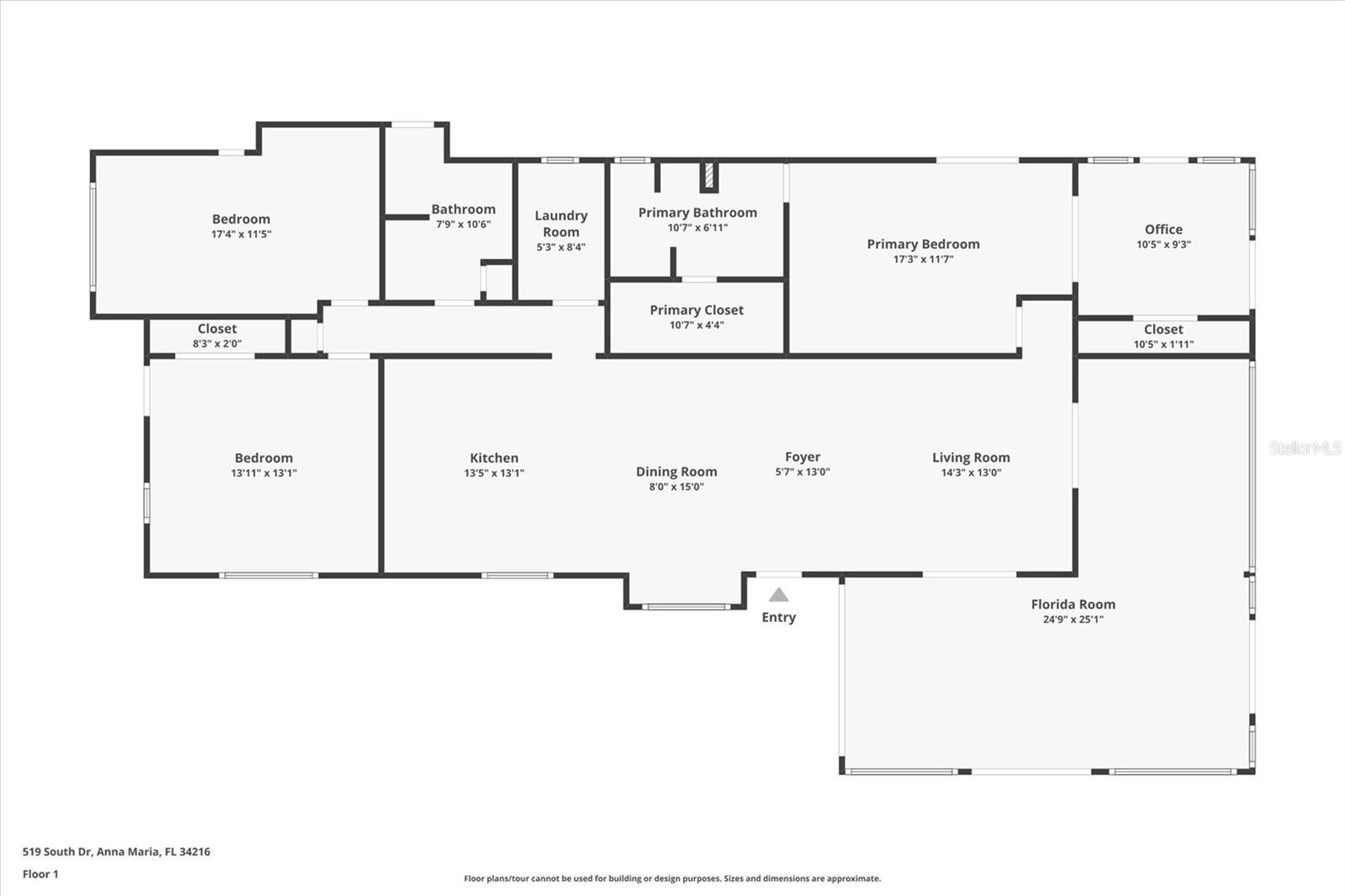
2,131
SQ. Feet
0.15
Acres

“Anna Maria Oasis” is a Bimini Bay Coastal Classic, perfectly positioned on the coveted north end in the City of Anna Maria. With deep-water access directly from your backyard, no bridges to the bay or the Gulf of Mexico, and a 50’ dock with pilings already in place for lift installation, this property is truly a boater’s and fisherman’s paradise. Originally built in 1972, the home was completely transformed in a top-to-bottom remodel in 2025, blending modern luxury with timeless island charm. No detail was overlooked. Highlights include imported Filipino shell stone flooring throughout, all-new drywall, insulation, plumbing, electrical, paint, fixtures, kitchen, and fresh landscaping. The living space was thoughtfully expanded with energy-efficient mini-split systems, increasing the under-air square footage from 1,582 sq ft to approximately 2,131 sq ft, offering enhanced comfort and flexibility. Additional upgrades include a new pool (2019) and new roof (2020). Designed for effortless indoor-outdoor living, this home is ideal for entertaining, launching a sunset cruise, or unwinding while taking in tranquil water views. This one-of-a-kind island property delivers the ultimate coastal lifestyle. Don’t miss this rare opportunity to own waterfront luxury in the heart of Anna Maria—where elegant design meets laid-back island living. Currently an active vacation rental please see remarks for link to the site.

Essential Information

  • MLS® #:
    A4675370
  • Price:
    $1,750,000
  • Bedrooms:
    3
  • Bathrooms:
    2.00
  • Full Baths:
    2
  • Square Footage:
    2,131
  • Acres:
    0.15
  • Year Built:
    1972
  • Type:
    Residential
  • Sub-Type:
    Single Family Residence
  • Status:
    Active

Community Information

  • Address:
    519 South Drive
  • Area:
    Anna Maria
  • Subdivision:
    WELLS BAY HARBOR SEC A
  • City:
    ANNA MARIA
  • County:
    Manatee
  • State:
    FL
  • Zip Code:
    34216

Amenities

  • Parking:
    Off Street
  • View:
    Pool, Water
  • Is Waterfront:
    Yes
  • Waterfront:
    Canal - Saltwater
  • Has Pool:
    Yes

Interior

  • Interior Features:
    Ceiling Fans(s), Crown Molding, Kitchen/Family Room Combo, Living Room/Dining Room Combo, Open Floorplan, Primary Bedroom Main Floor, Solid Surface Counters, Thermostat, Walk-In Closet(s)
  • Appliances:
    Dishwasher, Dryer, Electric Water Heater, Microwave, Range, Range Hood, Refrigerator, Washer, Wine Refrigerator
  • Heating:
    Central
  • Cooling:
    Central Air, Mini-Split Unit(s)
  • # of Stories:
    1

Exterior

  • Exterior Features:
    Lighting, Private Entrance, Private Mailbox, Sliding Doors
  • Roof:
    Other
  • Foundation:
    Slab

School Information

  • Elementary:
    Anna Maria Elementary
  • Middle:
    Martha B. King Middle
  • High:
    Manatee High

Additional Information

  • Days on Market:
    74
  • Zoning:
    R1

Listing Details

  • Listing Office:
    Sato Real Estate Inc.

Listing information courtesy of Sato Real Estate Inc..

All listing information is deemed reliable but not guaranteed and should be independently verified through personal inspection by appropriate professionals. Listings displayed on this website may be subject to prior sale or removal from sale; availability of any listing should always be independently verified.

Listing information is provided for consumer personal, non-commercial use, solely to identify potential properties for potential purchase; all other use is strictly prohibited and may violate relevant federal and state law.

Listing data comes from My Florida Regional MLS.

Listing information last updated on March 2nd, 2026 at 8:48pm EST.