My Search Tools:

$1,050,000 - 501 Spring Avenue, ANNA MARIA

4
Bedrooms
2
Baths
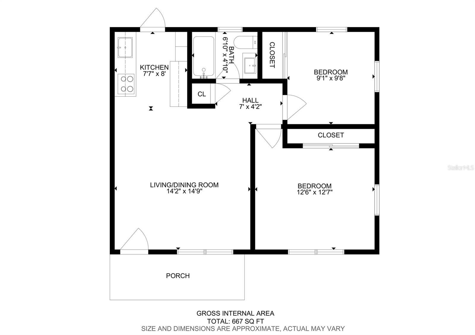
1,344
SQ. Feet
0.17
Acres

Under contract-accepting backup offers. Fantastic new listing in the highly desirable City of Anna Maria! This duplex property offers an incredible opportunity, situated just one short block from the beautiful Bay and a mere five blocks from our beautiful gulf beaches. You'll also appreciate its proximity to Pine Avenue, just one block away, where you can explore an array of charming boutiques and excellent restaurants. The property itself is a solid concrete block structure, featuring two bedrooms and one bathroom on each side. It sits on a spacious 7,210 square foot corner lot. This duplex has been home to long-term tenants for many years, but short-term rentals are allowed. Please note that it did experience flooding during Hurricane Helene, but has since undergone professional cleaning, and the electrical systems have been checked. This is a unique chance to invest in an island gem with significant potential. Come and see it for yourself to investigate all the possibilities this property offers. Fixer Upper or New build--you decide.

Essential Information

  • MLS® #:
    A4673736
  • Price:
    $1,050,000
  • Bedrooms:
    4
  • Bathrooms:
    2.00
  • Full Baths:
    2
  • Square Footage:
    1,344
  • Acres:
    0.17
  • Year Built:
    1964
  • Type:
    Residential
  • Sub-Type:
    Single Family Residence
  • Status:
    Pending

Community Information

  • Address:
    501 Spring Avenue
  • Area:
    Anna Maria
  • Subdivision:
    ANNA MARIA BEACH
  • City:
    ANNA MARIA
  • County:
    Manatee
  • State:
    FL
  • Zip Code:
    34216

Interior

  • Interior Features:
    Open Floorplan
  • Appliances:
    None
  • Heating:
    Central
  • Cooling:
    Central Air
  • # of Stories:
    1

Exterior

  • Exterior Features:
    None
  • Roof:
    Shingle
  • Foundation:
    Slab

Additional Information

  • Days on Market:
    54
  • Zoning:
    R2

Listing Details

  • Listing Office:
    Fran Maxon Real Estate

Listing information courtesy of Fran Maxon Real Estate.

All listing information is deemed reliable but not guaranteed and should be independently verified through personal inspection by appropriate professionals. Listings displayed on this website may be subject to prior sale or removal from sale; availability of any listing should always be independently verified.

Listing information is provided for consumer personal, non-commercial use, solely to identify potential properties for potential purchase; all other use is strictly prohibited and may violate relevant federal and state law.

Listing data comes from My Florida Regional MLS.

Listing information last updated on January 29th, 2026 at 6:19am EST.