My Search Tools:

$1,299,000 - 7915 Warwick Gardens Lane, UNIVERSITY PARK

3
Bedrooms
3
Baths
2,915
SQ. Feet
0.42
Acres

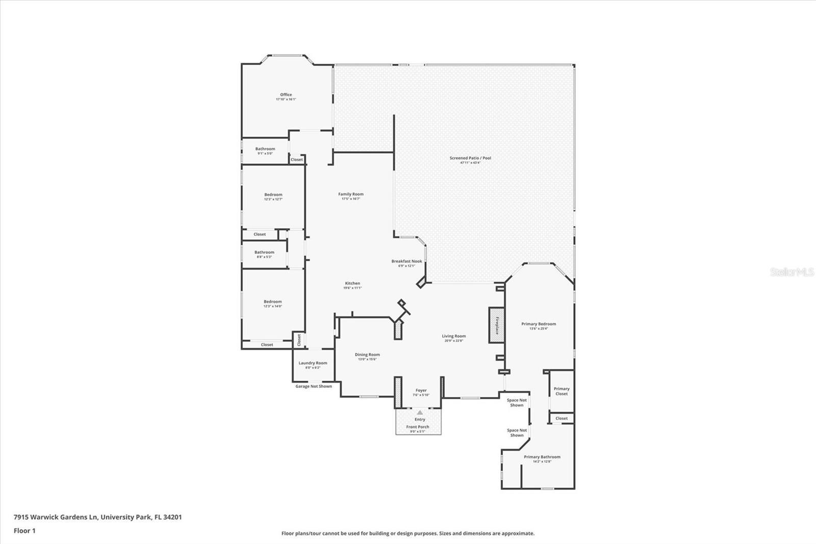
Welcome to effortless luxury living in the highly sought-after, landscape maintenance-free neighborhood of Warwick Gardens in the award-winning University Park Country Club. This meticulously maintained Neal Custom Home offers 3 bedrooms, 3 bathrooms, an office, and a 2-car garage with a separate golf-cart bay & door. With almost 3,000 sq. ft. of well-designed living space and a split floorplan, the home features a NEW ROOF in 2024, two A/C systems, central vacuum, built-in speakers inside and out, tall ceilings, ceiling fans, recessed lighting, architectural details, and abundant natural light. A large circular brick-paver driveway and walkway, along with beautifully maintained landscaping, lead to the glass front door framed with sidelights and a transom window. Tile and engineered hardwood flooring extend through the home, complemented by neutral paint colors that suit any décor style. The living room/dining room combination showcases a gas fireplace, built-ins and nooks, a triple slider to the lanai, and a convenient pass-through bar from the kitchen. The spacious eat-in kitchen and family room combination is ideal for both everyday living and entertaining, featuring an aquarium window, granite countertops with abundant workspace, wood cabinetry, a desk area, pantry closet, wine fridge, cooktop with warming drawer, and built-in oven. The family room offers a hurricane-rated triple sliders to the lanai, an abundance of windows, and custom built-ins. The luxurious primary suite includes a sitting area, tray ceilings, private lanai access, and his-and-hers walk-in closets with built-ins. The ensuite bath offers double sinks, a soaking tub, and a large zero-entry shower with two shower heads. Guest bedrooms and baths are located on the opposite side of the home for optimal privacy and feature large windows for natural light. The office impresses with a window seat overlooking the lake, double sliders to the lanai, extensive wood built-ins across two walls, and double glass entry doors. The laundry room is well equipped with a sink, upper and lower cabinetry, and a new LG washer and dryer installed in 2024. The expansive pavered lanai is a true outdoor oasis, featuring a beautiful lake view, outdoor kitchen with grill, sink, and refrigerator, and a sparkling pool and spa with waterfall and fountain features. Furnishings and the golf cart are available for purchase. This exceptional move-in ready home offers a rare combination of luxury, privacy, and convenience in a vibrant, amenity-rich community just minutes from everything Sarasota has to offer. Don’t miss your opportunity to own this one-of-a-kind residence in University Park Country Club! University Park Country Club is consistently ranked one of the top courses in Florida featuring 27 holes of championship golf; tennis and pickleball; fitness center, croquet – as well as an array of social and group activities. Just a 15-minute drive outside this peaceful enclave is downtown Sarasota, with shopping, arts & theatres, museums, dining and entertainment, top-ranked healthcare, beaches and SRQ International Airport. Two miles east of UPCC is the convenience of I-75, University Town Center with 300 nationally known and homegrown shops, restaurants, fitness studios, services and attractions, and Nate Benderson Park, home of world-class rowing events and Mote Marine Aquarium. Enjoy the club amenities with the required minimum of a Social membership at UPCC.

Essential Information

  • MLS® #:
    A4673327
  • Price:
    $1,299,000
  • Bedrooms:
    3
  • Bathrooms:
    3.00
  • Full Baths:
    3
  • Square Footage:
    2,915
  • Acres:
    0.42
  • Year Built:
    2002
  • Type:
    Residential
  • Sub-Type:
    Single Family Residence
  • Status:
    Active

Community Information

  • Address:
    7915 Warwick Gardens Lane
  • Area:
    Bradenton/Braden River/University Park
  • Subdivision:
    UNIVERSITY PARK COUNTRY CLUB
  • City:
    UNIVERSITY PARK
  • County:
    Manatee
  • State:
    FL
  • Zip Code:
    34201

Amenities

  • Amenities:
    Gated
  • # of Garages:
    2
  • View:
    Water
  • Has Pool:
    Yes

Interior

  • Interior Features:
    Built-in Features, Ceiling Fans(s), Central Vaccum, Crown Molding, Dry Bar, Eat-in Kitchen, High Ceilings, Kitchen/Family Room Combo, Living Room/Dining Room Combo, Primary Bedroom Main Floor, Solid Surface Counters, Solid Wood Cabinets, Split Bedroom, Tray Ceiling(s), Walk-In Closet(s), Window Treatments
  • Appliances:
    Built-In Oven, Cooktop, Dishwasher, Disposal, Dryer, Gas Water Heater, Microwave, Refrigerator, Washer, Wine Refrigerator
  • Heating:
    Electric
  • Cooling:
    Central Air
  • Fireplace:
    Yes
  • Fireplaces:
    Gas, Living Room
  • # of Stories:
    1

Exterior

  • Exterior Features:
    Lighting, Outdoor Grill, Outdoor Kitchen, Private Mailbox, Sliding Doors, Sprinkler Metered
  • Roof:
    Tile
  • Foundation:
    Slab

School Information

  • Elementary:
    Robert E Willis Elementary
  • Middle:
    Braden River Middle
  • High:
    Braden River High

Additional Information

  • Days on Market:
    50
  • Zoning:
    PDR/WPE/

Listing Details

  • Listing Office:
    Fine Properties

Listing information courtesy of Fine Properties.

All listing information is deemed reliable but not guaranteed and should be independently verified through personal inspection by appropriate professionals. Listings displayed on this website may be subject to prior sale or removal from sale; availability of any listing should always be independently verified.

Listing information is provided for consumer personal, non-commercial use, solely to identify potential properties for potential purchase; all other use is strictly prohibited and may violate relevant federal and state law.

Listing data comes from My Florida Regional MLS.

Listing information last updated on January 20th, 2026 at 3:34pm EST.