My Search Tools:

$947,013 - 16423 San Donato Place, BRADENTON

3
Bedrooms
3
Baths
2,405
SQ. Feet
0.17
Acres

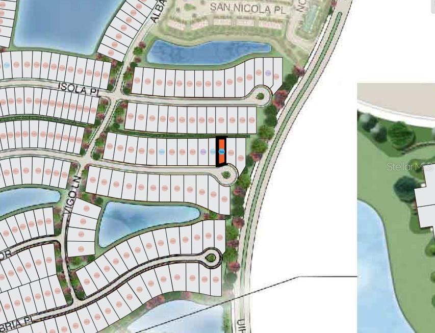
Under Construction. What's Special: High Ceilings | No Stairs | Popular Plan | Gourmet Kitchen. New Construction – March Completion! Built by Taylor Morrison, America’s Most Trusted Homebuilder. Welcome to the Lazio at 16423 San Donato Place in Esplanade at Azario Lakewood Ranch. This stunning new home is designed for both elegance and comfort. Step through the foyer into a bright dining area and a spacious great room that flows seamlessly into the gourmet kitchen. Here, you’ll find quartz countertops, a waterfall edge on the large island, and plenty of space for casual dining overlooking the great room. Whole-house impact windows bring in natural light while adding peace of mind. A sliding door opens to an expansive lanai with a built-in outdoor kitchen—perfect for entertaining or relaxing outdoors. The primary suite is tucked away at the back of the home and features a bay window, an en-suite bath, and a generous walk-in closet. Two secondary bedrooms, one with its own private bath, plus an additional full bathroom, a dedicated study, and a convenient laundry room complete this thoughtfully designed floor plan. Additional Highlights Include: Gourmet kitchen, study in place of flex, double pocket doors at study, bay window at primary suite, casual dining extension, extended covered lanai, outdoor kitchen with vented hood, 10' ceilings, 8' interior doors, tray ceiling at primary suite and great room, pool and spa pre-wire, sink at laundry, washer and dryer, and refrigerator. Photos are for representative purposes only. MLS#A4671018 Resort-Style Living in Esplanade at Azario Lakewood Ranch, the perfect blend of relaxation and recreation! Enjoy the heated resort-style pool, state-of-the-art fitness center, and energizing aerobics classes. For outdoor enthusiasts, there are pickleball courts, scenic trails, Vitality Park, and if golf is your game, you'll love Esplanade's 18-hole championship course! Unwind with a facial massage or by the fire pit after a workout. Exclusive amenities like a Wellness Center, Culinary Center, and sports courts ensure there's something for everyone, whether you want to stay active or relax in style.

Essential Information

  • MLS® #:
    A4671018
  • Price:
    $947,013
  • Bedrooms:
    3
  • Bathrooms:
    3.00
  • Full Baths:
    3
  • Square Footage:
    2,405
  • Acres:
    0.17
  • Year Built:
    2026
  • Type:
    Residential
  • Sub-Type:
    Single Family Residence
  • Style:
    Mediterranean
  • Status:
    Pending

Community Information

  • Address:
    16423 San Donato Place
  • Area:
    Bradenton/Lakewood Ranch Area
  • Subdivision:
    AZARIO ESPLANADE
  • City:
    BRADENTON
  • County:
    Manatee
  • State:
    FL
  • Zip Code:
    34211

Amenities

  • Amenities:
    Clubhouse, Fence Restrictions, Fitness Center, Gated, Golf Course, Maintenance, Park, Pickleball Court(s), Playground, Pool, Recreation Facilities, Spa/Hot Tub, Tennis Court(s)
  • Parking:
    Tandem
  • # of Garages:
    3

Interior

  • Interior Features:
    Open Floorplan, Primary Bedroom Main Floor, Tray Ceiling(s), Walk-In Closet(s), Window Treatments
  • Appliances:
    Built-In Oven, Cooktop, Dishwasher, Disposal, Gas Water Heater, Microwave, Refrigerator
  • Heating:
    Central
  • Cooling:
    Central Air

Exterior

  • Exterior Features:
    Sliding Doors
  • Lot Description:
    Cul-De-Sac
  • Roof:
    Tile
  • Foundation:
    Slab

School Information

  • Elementary:
    Gullett Elementary
  • Middle:
    Dr Mona Jain Middle
  • High:
    Lakewood Ranch High

Additional Information

  • Days on Market:
    89
  • Zoning:
    RES

Listing Details

  • Listing Office:
    Taylor Morrison Rlty Of Fla

Listing information courtesy of Taylor Morrison Rlty Of Fla.

All listing information is deemed reliable but not guaranteed and should be independently verified through personal inspection by appropriate professionals. Listings displayed on this website may be subject to prior sale or removal from sale; availability of any listing should always be independently verified.

Listing information is provided for consumer personal, non-commercial use, solely to identify potential properties for potential purchase; all other use is strictly prohibited and may violate relevant federal and state law.

Listing data comes from My Florida Regional MLS.

Listing information last updated on February 3rd, 2026 at 7:49pm EST.