My Search Tools:

$1,150,000 - 567 Venice Lane, SARASOTA

4
Bedrooms
2
Baths
1,915
SQ. Feet
0.26
Acres

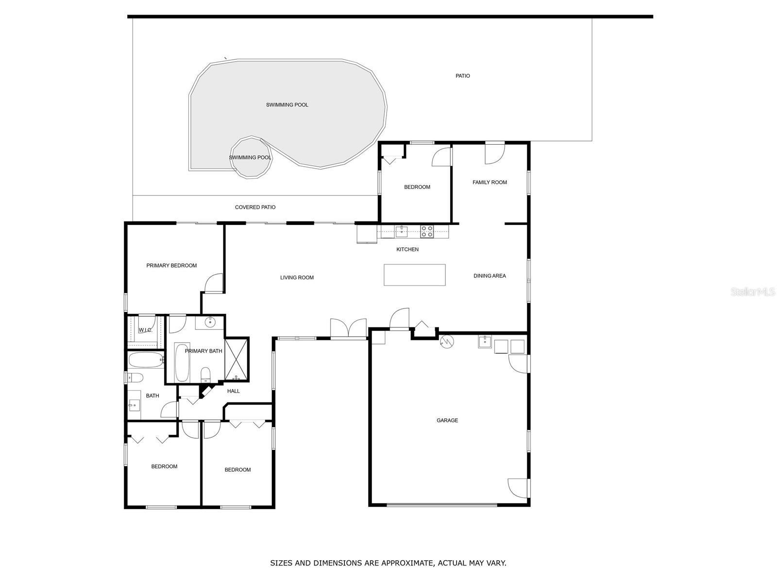
Under the canopy of grand oaks and banyan trees, this move-in-ready FURNISHED Siesta Key POOL home offers the perfect blend of luxury and coastal charm. Located minutes from the world-famous beach and village, this retreat has been redesigned for island living with almost every inch of the home renovated to perfection! A freshly painted exterior, paver driveway, and xeriscape landscaping create a warm welcome. Inside, an open floor plan creates effortless indoor-outdoor living with tile flooring, bright living area, and pocket sliding glass doors seamlessly connecting to your private backyard oasis. The expansive paradise features a sparkling pool and hot tub with new pump/heater, surrounded by new privacy fencing, and an extended paver patio. The heart of the home is the renovated chef's kitchen, boasting duo-toned soft-close cabinetry, quartz countertops, and tile backsplash. The oversized kitchen island and adjacent dining area set the stage for lively gatherings, while the cozy den opens up to the patio for effortless pool-side alfresco dining. The primary suite features direct pool access and a newly updated bathroom with soaking tub, walk-in shower, and modern finishes. Thoughtfully designed for privacy, the split floor plan includes a poolside guest room along with two additional bedrooms tucked in a private wing with an updated bathroom. Additional updates include a NEW AC system/ductwork and NEW Hot Water Heater ensuring year-round comfort. The oversized two car garage offers plenty of parking and extra space for a golf cart and beach gear. Enjoy the tranquility of the tree lined streets while still having easy access on and off the island. This home is being enjoyed by seasonal renters, but now it’s your turn to enjoy island life! Whether you're looking for a lucrative FURNISHED short-term rental, a seasonal retreat, or a forever home, this renovated Siesta Key gem offers the best of island living!

Essential Information

  • MLS® #:
    A4670981
  • Price:
    $1,150,000
  • Bedrooms:
    4
  • Bathrooms:
    2.00
  • Full Baths:
    2
  • Square Footage:
    1,915
  • Acres:
    0.26
  • Year Built:
    1971
  • Type:
    Residential
  • Sub-Type:
    Single Family Residence
  • Status:
    Active

Community Information

  • Address:
    567 Venice Lane
  • Area:
    Sarasota/Crescent Beach/Siesta Key
  • Subdivision:
    SIESTAS BAYSIDE WATERSIDE EAST
  • City:
    SARASOTA
  • County:
    Sarasota
  • State:
    FL
  • Zip Code:
    34242

Amenities

  • # of Garages:
    2
  • Has Pool:
    Yes

Interior

  • Interior Features:
    Ceiling Fans(s), Eat-in Kitchen, Kitchen/Family Room Combo, Living Room/Dining Room Combo, Open Floorplan, Primary Bedroom Main Floor, Split Bedroom, Stone Counters, Thermostat, Walk-In Closet(s), Window Treatments
  • Appliances:
    Dishwasher, Disposal, Dryer, Electric Water Heater, Exhaust Fan, Freezer, Ice Maker, Microwave, Range, Refrigerator, Washer
  • Heating:
    Central, Electric
  • Cooling:
    Central Air
  • # of Stories:
    1

Exterior

  • Exterior Features:
    Courtyard, Dog Run, Lighting, Sliding Doors
  • Roof:
    Tile
  • Foundation:
    Slab

Additional Information

  • Days on Market:
    81
  • Zoning:
    RSF2

Listing Details

  • Listing Office:
    Preferred Shore Llc

Listing information courtesy of Preferred Shore Llc.

All listing information is deemed reliable but not guaranteed and should be independently verified through personal inspection by appropriate professionals. Listings displayed on this website may be subject to prior sale or removal from sale; availability of any listing should always be independently verified.

Listing information is provided for consumer personal, non-commercial use, solely to identify potential properties for potential purchase; all other use is strictly prohibited and may violate relevant federal and state law.

Listing data comes from My Florida Regional MLS.

Listing information last updated on January 25th, 2026 at 8:04pm EST.