My Search Tools:

$2,250,000 - 1408 Oak Hammock Road, SARASOTA

4
Bedrooms
4
Baths
4,003
SQ. Feet
5.28
Acres

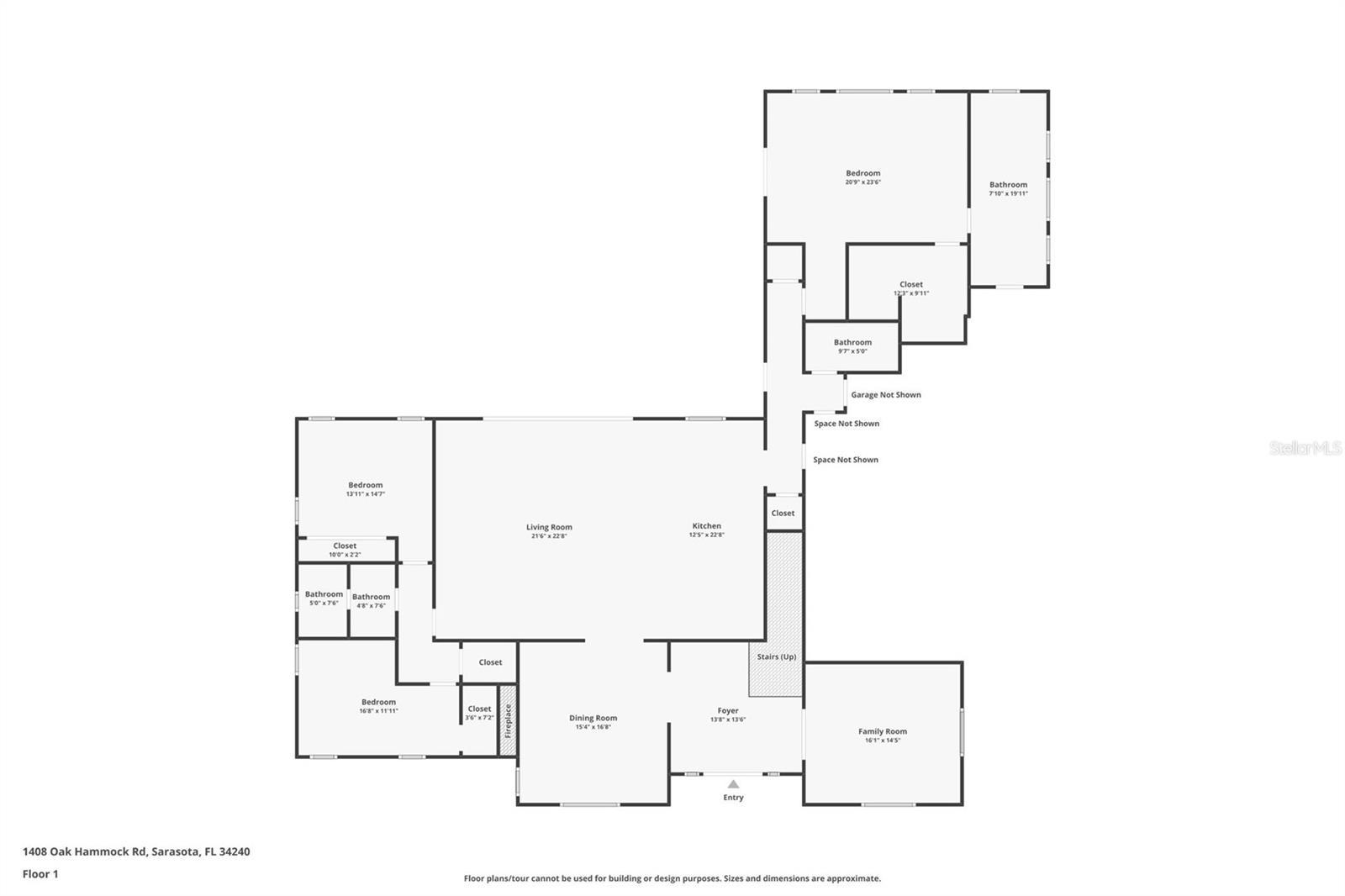
Welcome to this 2016 custom-built modern farmhouse set on over 5 peaceful acres, offering the perfect blend of refined design and relaxed country living. Surrounded by natural beauty and frequent wildlife sightings, this private Sarasota retreat features 4 bedrooms, 4 baths, and thoughtfully crafted spaces throughout. A grand entry through Therma Tru double doors leads to an inviting foyer and a spacious great room with soaring ceilings and abundant natural light. The chef’s kitchen is a standout with gas cooktop, pot filler, oversized quartz island, custom B&B shaker cabinetry, reverse osmosis system, pantry, and built-in features. The dining area centers around a beautiful gas stone fireplace for warm, elegant gatherings. A dedicated office/media room with double doors and a versatile loft offer ideal spaces for work, entertainment, or relaxation. The primary suite includes French doors to the pool area, a luxurious bath with double vanity, and a private water closet. This split plan provides two additional bedrooms and a full bath downstairs, while the upstairs includes a spacious loft and a large fourth bedroom/bonus room for added privacy and flexibility. A well-appointed laundry room and full pool bath add convenience. Stylish polished concrete floors run throughout the home, blending modern design with rustic warmth. Property features include hurricane-impact windows and sliders, a 10-foot-plus two-car garage suitable for a lift, three AC units, whole-house generator, water softener, tankless water heater (NR980D), operational well, septic system with 1,350-gallon tank and 84 sq. ft. drain field, and a 500-gallon buried propane tank. Outdoor living is exceptional with a sparkling saltwater pool, expansive paver deck, covered patio, and plumbing in place for an outdoor kitchen. The acreage offers ample room for an additional structure or barn, making it suitable for a homestead, equestrian use, or quiet nature retreat. Enjoy peaceful mornings and sunsets on the charming covered front porch, and experience the serenity of this one-of-a-kind Sarasota property.

Essential Information

  • MLS® #:
    A4669875
  • Price:
    $2,250,000
  • Bedrooms:
    4
  • Bathrooms:
    4.00
  • Full Baths:
    4
  • Square Footage:
    4,003
  • Acres:
    5.28
  • Year Built:
    2016
  • Type:
    Residential
  • Sub-Type:
    Single Family Residence
  • Style:
    Custom, Florida, Traditional
  • Status:
    Active

Community Information

  • Address:
    1408 Oak Hammock Road
  • Area:
    Sarasota
  • Subdivision:
    BERN CREEK THE RANCHES AT
  • City:
    SARASOTA
  • County:
    Sarasota
  • State:
    FL
  • Zip Code:
    34240

Amenities

  • Parking:
    Driveway, Guest, Open, Oversized
  • # of Garages:
    2
  • View:
    Trees/Woods
  • Has Pool:
    Yes

Interior

  • Interior Features:
    Eat-in Kitchen, High Ceilings, Primary Bedroom Main Floor, Solid Surface Counters, Thermostat, Walk-In Closet(s)
  • Appliances:
    Built-In Oven, Cooktop, Dishwasher, Disposal, Dryer, Gas Water Heater, Kitchen Reverse Osmosis System, Microwave, Range, Range Hood, Refrigerator, Tankless Water Heater, Washer, Water Filtration System, Water Softener
  • Heating:
    Central, Propane
  • Cooling:
    Central Air, Zoned
  • Fireplace:
    Yes
  • Fireplaces:
    Gas, Insert, Non Wood Burning, Other, Stone
  • # of Stories:
    2

Exterior

  • Exterior Features:
    Other, Private Mailbox
  • Lot Description:
    In County, Landscaped, Oversized Lot, Private
  • Roof:
    Shingle
  • Foundation:
    Slab

School Information

  • Elementary:
    Tatum Ridge Elementary
  • Middle:
    McIntosh Middle
  • High:
    Booker High

Additional Information

  • Days on Market:
    111
  • Zoning:
    OUE

Listing Details

  • Listing Office:
    Coldwell Banker Realty

Listing information courtesy of Coldwell Banker Realty.

All listing information is deemed reliable but not guaranteed and should be independently verified through personal inspection by appropriate professionals. Listings displayed on this website may be subject to prior sale or removal from sale; availability of any listing should always be independently verified.

Listing information is provided for consumer personal, non-commercial use, solely to identify potential properties for potential purchase; all other use is strictly prohibited and may violate relevant federal and state law.

Listing data comes from My Florida Regional MLS.

Listing information last updated on February 25th, 2026 at 12:18am EST.